
ZHBWG光伏并網柜
產品名稱:ZHBWG光伏并網柜
所屬分類:光伏箱柜系列
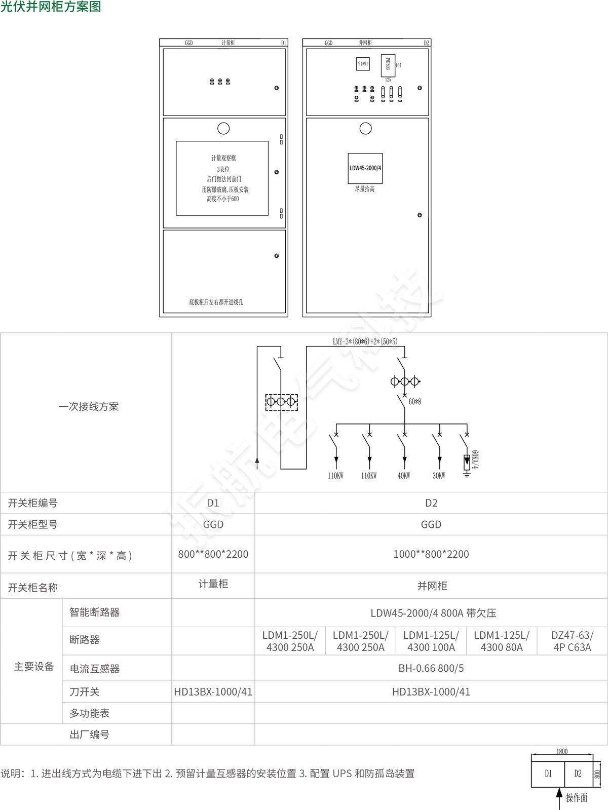
產品簡介:ZHBWG 光伏并網柜是承接集中式逆變器與升壓變壓器或交流匯流箱與升壓變壓器的重要組成部分 , 此光伏并網柜的進線采用斷路器輸入或直接輸入 , 輸出采用斷路器或負荷隔離開關 , 母線采用電鍍或純化后的母線連接 , 并提供二級防雷保護 , 系統額定電壓為AC690V, 防護等級室內為 IP40、室外為 IP65; 二次測量及控制的電纜 , 電流為大于 2.5mm^2的電纜,電壓為大 1.5mm2 的電纜 , 控制為大于1.0mm2 的電纜 , 測量電流互感器為 0.5 級的電流互感器 , 計量互感器為 0.2S 級的電流互感器。還可根據客戶要求增加相關的功能等。此產品采用的電氣設計、元件選型 , 使柜體內部結構安全、簡潔、美觀、方便現場接線及維護并保證設備長時間的穩定工作。



